8套简欧小别墅,80、90后最爱的户型,时尚简约!
当代城市压力大,空气、环境都污染比较严重,城市的灯红酒绿也很容易让人迷失自我。很多80、90后的人宁愿一辈子呆在故乡。享受家乡的山山水水,乡土人情。然后有个自己满意的房子,一家人一辈子。想想都很美好!而且现如今农村发展迅速,网络发达,农村的房子也越来越好看。农村的日子可以说很幸福了。在这里分享8款80、90后最喜欢的简欧小别墅给大家,让你们美好的乡村生活有一个美好的开始!
编号: DC0277
层数: 三层
结构形式: 砖混结构
主体造价: 28-32万
开间: 11米
进深: 11.6米
占地面积: 130.71平方米
建筑面积: 385.85平方米


一 层: 客厅、卧室、厨房、餐厅、卫生间、车库
二 层: 客厅、娱乐厅、卧室(附阳台)、2卧室、书房、卫生间
三 层: 娱乐厅、卧室(附阳台)、2卧室、卫生间、露台
编号: DC0245
层数: 三层
结构形式: 框架结构
主体造价: 34-40万
开间: 12.2米
进深: 13.5米
占地面积: 146.12平方米
建筑面积: 405.58平方米


一 层: 客厅、卧室(附卫生间)、卧室、棋牌室、厨房、餐厅(附景观阳台)、卫生间
二 层: 起居室(附阳台)、茶厅(附阳台)、卧室(附阳台)、卧室(附卫生间)、2卧室、书房、卫生间
三 层: 健身房(附露台)、卧室(附卫生间,露台)、2卧室、书房、卫生间
编号: DC0256
层数: 三层
结构形式: 砖混结构
主体造价: 22-26万
开间: 14米
进深: 8米
占地面积: 115.12平方米
建筑面积: 296.57平方米


一 层: 客厅、卧室、厨房、餐厅、卫生间、车库(兼储藏室)
二 层: 客厅、休息区、卧室(附露台)、3卧室、卫生间
三 层: 3卧室、卫生间、2露台
编号: DC0248
层数: 三层
结构形式: 框架结构
主体造价: 45-50万
开间: 15米
进深: 11.4米
占地面积: 151.84平方米
建筑面积: 383.9平方米


一 层: 玄关、客厅(中空)、卧室、厨房、餐厅、卫生间、车库
二 层: 休息厅、卧室(附卫生间,阳台)、卧室(附阳台)、卧室、卫生间
三 层: 客厅(附露台)、卧室(附卫生间,阳台)、卧室(附阳台)、卧室、卫生间、露台
阁 楼: 凉亭、储藏间
编号: DC0229
层数: 三层
结构形式: 砖混结构
主体造价: 24-28万
开间: 11.7米
进深: 11.1米
占地面积: 125.93平方米
建筑面积: 303.96平方米


一 层: 客厅(中空)、卧室、厨房、餐厅、卫生间、车库
二 层: 小客厅、卧室(附阳台)、2卧室、卫生间
三 层: 小客厅、卧室(附阳台)、2卧室、卫生间、露台
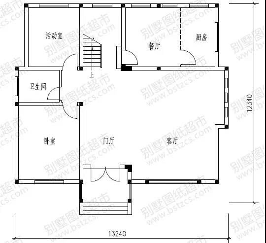
编号: DC0190
层数: 三层
结构形式: 砖混结构
主体造价: 26-32万
开间: 13.24米
进深: 12.34米
占地面积: 147.09平方米
建筑面积: 350.63平方米


一 层: 门厅、客厅、卧室、活动室、厨房、餐厅、卫生间
二 层: 起居室(附露台)、卧室(附书房,卫生间)、卧室(附衣柜间,卫生间)
三 层: 健身房、卧室(附卫生间)、卧室、卫生间、2露台
编号: DC0312
层数: 三层
结构形式: 砖混结构
主体造价: 22-26万
开间: 9.9米
进深: 9.6米
占地面积: 92.94平方米
建筑面积: 274.1平方米


一 层: 客厅、卧室、厨房、餐厅、卫生间
二 层: 休息区、卧室(附书房,衣帽间,阳台)、卧室、储存间、卫生间
三 层: 卧室(附书房,衣帽间,阳台)、卧室(附露台)、卫生间
编号: DC0251
层数: 三层
结构形式: 框架结构
主体造价: 25-30万
开间: 12.8米
进深: 10.8米
占地面积: 118.34平方米
建筑面积: 301.42平方米


一 层: 客厅、卧室(附衣帽间)、卧室、厨房、餐厅、卫生间
二 层: 小客厅、卧室(附阳台)、2卧室、衣帽间、书房、卫生间
三 层: 卧室(附衣帽间,书房,化妆间,卫生间,阳台)、露台
以上8款农村别墅外观造型都属于比较简约的欧式,时尚又大气,不管在什么时候都不会过时,想建房的朋友可以参考!
.jpg)
本文由别墅图纸超市编辑发布,如需了解更多,可登录网站主页http://www.bstzcs.com/,或者拨打我们的免费电话400-8080-889在线咨询。
>>>>推荐阅读:精选10款带烟囱设计自建别墅,乡村风味最经典!
>>>>推荐阅读:10款造价22万新农村自建别墅,选中即可开工!
>>>>推荐阅读:15款定制小别墅让你爱上农村,第2套低调贵气,第12套最豪华
                    










