精选6款高品质农村别墅,养老住家最佳之选!
在城里和农村之间,很多上了年纪的老人家肯定会选择农村生活,毕竟一辈子都是在农村生活的,到老了要远离故土去向城里肯定不习惯。于是很多的朋友考虑到父母能安享晚年生活,也会选择在农村来一套自建房。不过现在的农村别墅虽已随处可见,但是看来看去样式都差不多,缺了一些独特美感,让不少的人吐槽咱们农村人的品味。今天小编特意推荐6款户型,造价实惠又实用,养老住家最合适!希望可以给大家个参考,建一套引领全村建房潮流。
三层自建别墅


户型基本信息
编号:DC0040
结构形式:框架结构
开间:13.4米 进深:10.2米
占地面积:119平方米
建筑面积:297.6平方米
主体造价:25-30万
首层户型:

图纸预览:



一层:入口玄关、客厅、厨房、餐厅、卫生间、车库
二层:起居室、卧室(附阳台)、卧室、书房、卫生间
三层:起居室、主卧(附阳台)、卧室(附阳台)、书房、卫生间、露台
二层带露台别墅

户型基本信息
编号:DC0154
结构形式:砖混结构
开间:12米 进深:11.7米
占地面积:115.33平方米
建筑面积:332.7平方米
主体造价:26-30万
首层户型:

图纸预览:


一层:门厅、客厅、卧室(附卫生间)、厨房、餐厅、卫生间
二层:起居室、卧室(附卫生间)、卧室(附阳台)、书房(附阳台)、卫生间、露台
漂亮实用三层简欧小别墅

建成案例:

户型基本信息
编号:DC0243
结构形式:框架结构
开间:11米 进深:11.3米
占地面积:120.85平方米
建筑面积:307.63平方米
主体造价:25-32万
首层户型:

图纸预览:


一层:客厅、卧室、厨房、餐厅、卫生间、车库或储藏室
二层:客厅、卧室(附卫生间)、2卧室、书房(附阳台)、卫生间、阳台
三层:2卧室(附卫生间)、露台
二层带阁楼的别墅


户型基本信息
编号:DC0260
结构形式:框架结构
开间:14.2米 进深:11.1米
占地面积:144.24平方米
建筑面积:344.08平方米
主体造价:34-40万
首层户型:

图纸预览:



一层:大堂、客厅、卧室(附卫生间)、卧室、厨房、餐厅、卫生间
二层:起居室、卧室(附露台)、卧室(附阳台)、卧室、卫生间、阳台
阁楼:储藏间、卫生间、露台
农村三层自建房


户型基本信息
编号:DC0177
结构形式:框架结构
开间:12.2米 进深:13.5米
占地面积:146.12平方米
建筑面积:405.58平方米
主体造价:34-40万
首层户型:

图纸预览:


一层:客厅、卧室(附卫生间)、卧室、棋牌室、厨房、餐厅(附景观阳台)、卫生间;
二层:起居室(附阳台)、茶厅(附阳台)、卧室(附阳台)、卧室(附卫生间)、2卧室、书房、卫生间;
三层:健身房(附露台)、卧室(附卫生间,露台)、2卧室、书房、卫生间
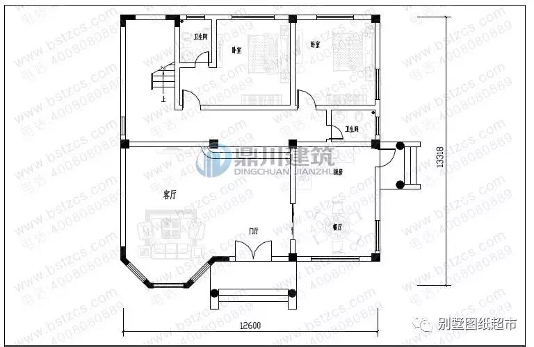
二层欧式小别墅

建成案例:

户型基本信息
编号:DC0299
结构形式:框架结构
开间:12.6米 进深:13.318米
占地面积:161.48平方米
建筑面积:381.05平方米
主体造价:30-36万
首层户型:

图纸预览:


一层:门厅、客厅、卧室(附卫生间)、卧室、厨房、餐厅、卫生间
二层:起居室、卧室(附书房,露台,衣帽间,卫生间)、2卧室、卫生间
.jpg)
本文由别墅图纸超市编辑发布,如需了解更多,可登录网站主页http://www.bstzcs.com/,或者拨打我们的免费电话400-8080-889在线咨询。
>>>>推荐阅读:6款非常适合农村自建房的三层复式别墅设计
>>>>推荐阅读:6套适合农村的别墅,第1套最省钱,第4、6最漂亮!
>>>>推荐阅读:6套带旋转楼梯农村自建别墅,大气有品位,看过的都说好
                    










