这8款火遍农村的自建别墅,真后悔没有早点遇到!
现在对于普通农村居民来说,花个几十万左右来建房,除了自己喜欢当然还要实用和美观啦,小编今天整理了8套很受农村朋友欢迎的自建别墅,个个都是经典,来和大家一起欣赏下吧,觉得有用可以收藏哦!
农村三层带旋转楼梯别墅

户型基本信息
编号: DC0219
层数: 三层
结构形式: 框架结构
开间: 11.7米 进深: 12米
占地面积: 138.16平方米
建筑面积: 352.46平方米
主体造价: 30-35万
首层户型:

图纸预览:


一 层:客厅、卧室(附卫生间)、卧室、厨房、餐厅、卫生间
二 层:客厅、卧室(附卫生间)、卧室、儿童房、棋牌室、卫生间、露台
三 层:卧室(附书房)、卧室、卫生间、露台
新农村三层带露台自建别墅

户型基本信息
编号: DC0221
层数: 三层
结构形式: 砖混结构
开间: 9.96米 进深: 12.96米
占地面积: 111.68平方米
建筑面积: 305.6平方米
主体造价: 22-28万
首层户型:

图纸预览:


一 层:客厅、2卧室、厨房、餐厅、卫生间
二 层:客厅、3卧室、书房、卫生间、阳台
三 层:3卧室、书房、卫生间、露台
二层带车库露台新农村自建别墅

户型基本信息
编号: DC0362
层数: 二层
结构形式: 砖混结构
开间: 17.1米 进深: 10.2米
占地面积: 181.49平方米
建筑面积: 341.34平方米
主体造价: 26-30万
首层户型:

二层户型:

一 层:门厅、客厅、卧室(附卫生间)、卧室、厨房、餐厅、卫生间、车库
二 层:卧室(附卫生间)、卧室(附露台)、2卧室、卫生间、露台
三层欧式自建别墅

户型基本信息
编号: DC0055
层数: 三层
结构形式: 砖混结构
开间: 15.6米 进深: 10.3米
占地面积:143.38平方米
建筑面积:435.4平方米
主体造价: 35-40万
首层户型:

图纸预览:



一 层:堂屋、客厅、卧室(附卫生间)、厨房、餐厅、卫生间、车库
二 层:起居室、卧室(附阳台)、卧室(附卫生间)、2卧室、卫生间、阳台
三 层:起居室、娱乐厅、卧室(附卫生间)、书房(附阳台)、卫生间、露台
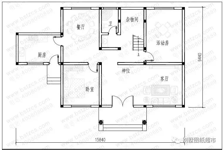
农村二层小别墅

户型基本信息
编号: DC0017
层数: 二层
结构形式: 砖混结构
开间: 15.84米 进深: 9.44米
占地面积: 134.8平方米
建筑面积: 225.6平方米
主体造价: 18-22万
首层户型:

图纸预览:



一 层:客厅、卧室、活动房(或卧室)、厨房、餐厅、杂物间、卫生间
二 层:4卧室、卫生间、露台
二层带阳台双拼别墅

户型基本信息
编号: DC0360
层数: 二层
结构形式: 砖混结构
开间: 16米 进深: 13.2米
占地面积: 212.8平方米
建筑面积: 483.89平方米
主体造价: 43-48万
首层户型:

二层户型:

一 层:客厅、卧室(附卫生间)、厨房、餐厅、卫生间
二 层:起居室、卧室(附卫生间)、卧室(附阳台)、卧室、卫生间
二层带阳台农村小别墅

户型基本信息
编号: DC0324
层数: 二层
结构形式: 砖混结构
开间: 13.8米 进深: 8.4米
占地面积: 116.18平方米
建筑面积: 268.86平方米
主体造价: 22-26万
首层户型:

图纸预览:



一 层:客厅、卧室(附卫生间)、卧室、厨房、餐厅、卫生间
二 层:起居室、卧室(附书房,卫生间,阳台,露台)、卧室(附阳台)、2卧室、卫生间
新农村三层带露台别墅

户型基本信息
编号: DC0028
层数: 三层
结构形式: 砖混结构
开间: 11.5米 进深: 10.5米
占地面积: 121.03平方米
建筑面积: 312.31平方米
主体造价: 22-26万
首层户型:

图纸预览:


一 层:堂屋、客厅、老人房(附卫生间)、娱乐室、厨房、餐厅、农具间、卫生间
二 层:客厅、2卧室(附阳台)、2卧室、2卫生间
三 层:2卧室(附阳台)、卧室、卫生间、露台
住着这样的房子,生活一定很美好吧!这些都是爆款哦,造价合适,户型好,准备盖房的朋友不要错过!
.jpg)
本文由别墅图纸超市编辑发布,如需了解更多,可登录网站主页http://www.bstzcs.com/,或者拨打我们的免费电话400-8080-889在线咨询。
>>>>推荐阅读:6款带堂屋的三层农村别墅,农村就要建这样的好房子!
>>>>推荐阅读:7套两层复式自建别墅户型,自建房中的精品户型!
>>>>推荐阅读:这8套农村别墅设计,户型讨喜,堂屋露台一应俱全!











